top of page
Occasion
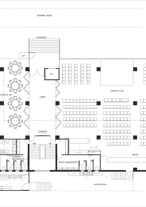
8,300 sq. ft. Banquet in Pune
Studio Soft Corners
Mood Boards, Client Presentations, Site and Contractor Coordination, 3D Visualisation, Floor Plans, Commercial Kitchen Design, Working Drawings, HVAC
Overview
I led the design development, drawings, 3Ds, and execution, and collaborated with specialised HVAC and commercial kitchen consultants to align all technical requirements.

bottom of page













